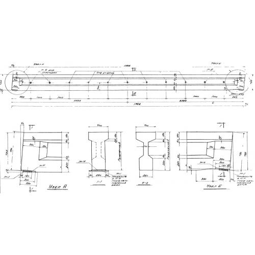
БОП 12

Чертеж изделия:
Характеристики изделия:
ПараметрЗначение
длина11966 мм
ширина400 мм
высота788 мм
масса5500 кг
нормативный документСерия ПК-01-116

БОП 12 Балки односкатные с проволочной арматурой по Серии ПК-01-116.