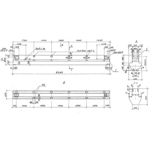
ИБ 26 ригели с полками для опирания плит

Чертеж изделия:
Характеристики изделия:
ПараметрЗначение
длина8280 мм
ширина650 мм
высота800 мм
масса6230 кг
нормативный документСерия ИИ 23-2/70

ИБ 26  Ригель для опирани плит по Серии ИИ 23-2/70.