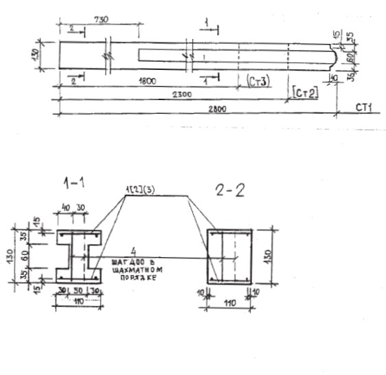
СТ-1

Чертеж изделия:
Характеристики изделия:
ПараметрЗначение
Длина L2800 мм
Ширина В110 мм
Высота Н130 мм
Вес83 кг
СерияБ3.017.1-1
Норма погрузки на машину (20тн)240 шт
Вагонная норма погрузки-

Столбы забора СТ 1 применяются совместно с панелями ограждения, изготовленными по серии Б 3.017.1-1.