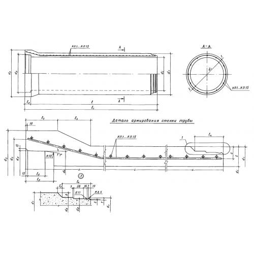
ТНН 60.50

Чертеж изделия:
Характеристики изделия:
ПараметрЗначение
длина5145 мм
ширина913 мм
высота913 мм
вес2120 кг
серия3.901.1-15

ТНН 60.50 Трубы низконапорные центобежнопрокатные по серии 3.901.1-15.