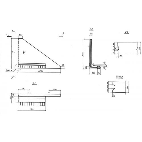
НГ 20
Характеристики изделия:
| Параметр | Значение |
|---|---|
| длина | 2850 мм |
| ширина | 780 мм |
| высота | 2000 мм |
| вес | 1550 кг |
| серия | 3.820.1-39 |
Цена:
Рассчитать стоимостьНГ 20 Г-образные конструкции с "ныряющей" вертикальной стенкой многоцелевого назначения по серии 3.820.1-39.
