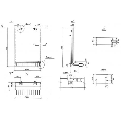
Г 30.20
Характеристики изделия:
| Параметр | Значение |
|---|---|
| длина | 2000 мм |
| ширина | 940 мм |
| высота | 3000 мм |
| вес | 3620 кг |
| серия | 3.820.1-39 |
Цена:
Рассчитать стоимостьГ 30.20 Г-образные конструкции многоцелевого нзначения по серии 3.820.1-39.
| Параметр | Значение |
|---|---|
| длина | 2000 мм |
| ширина | 940 мм |
| высота | 3000 мм |
| вес | 3620 кг |
| серия | 3.820.1-39 |
Г 30.20 Г-образные конструкции многоцелевого нзначения по серии 3.820.1-39.
