СВ 100
Характеристики изделия:
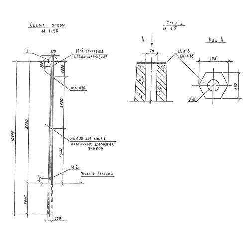
| Параметр | Значение |
|---|---|
| длина | 10000 мм |
| ширина | 370 мм |
| высота | 427 мм |
| вес | 1100 кг |
| серия | 3.507 КЛ-10 |
Цена:
Рассчитать стоимостьСВ 110 Стойки вибрированные по серии 3.507 КЛ-10.
| Параметр | Значение |
|---|---|
| длина | 10000 мм |
| ширина | 370 мм |
| высота | 427 мм |
| вес | 1100 кг |
| серия | 3.507 КЛ-10 |
СВ 110 Стойки вибрированные по серии 3.507 КЛ-10.
