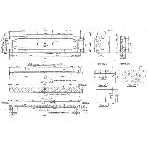
ПТ-П3

Чертеж изделия:
Характеристики изделия:
ПараметрЗначение
длина6400 мм
ширина465 мм
высота1490 мм
масса5880 кг
нормативный документСерия 3.507-1

ПТ-П3 Плиты перекрытия подземных тоннелей по Серии 3.507-1.