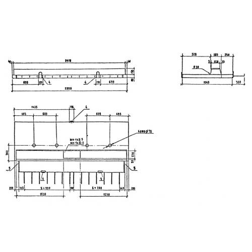
ОБ 15 блок ограждающий

Чертеж изделия:
Характеристики изделия:
ПараметрЗначение
длина2990 мм
ширина1340 мм
высота150 мм
вес900 кг
серия3.503.1-81

ОБ 15 Блоки ограждающие. Блоки для разграничения проезжей и пешеходной частей по серии  3.503.1-81.