СП

Чертеж изделия:
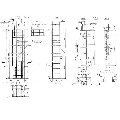
Характеристики изделия:
ПараметрЗначение
длина7960 мм
ширина1000 мм
высота700 мм
вес11000 кг
серия3.503.1-53

СП Промежуточные блоки опоры - стенки без проемов по серии 3.503.1-53.