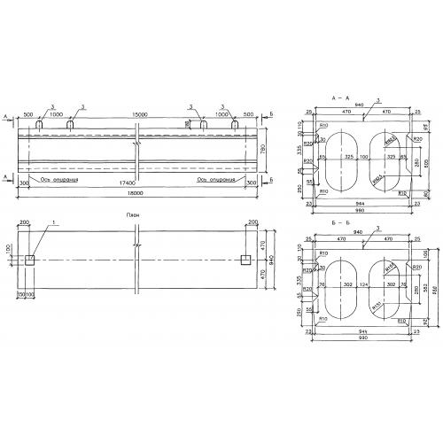
П 18
Характеристики изделия:
| Параметр | Значение |
|---|---|
| длина | 18000 мм |
| ширина | 990 мм |
| высота | 780 мм |
| вес | 17500 кг |
| серия | 3.503.1-108 |
Цена:
Рассчитать стоимостьП 18 Пустотные плиты по серии 3.503.1-108.
| Параметр | Значение |
|---|---|
| длина | 18000 мм |
| ширина | 990 мм |
| высота | 780 мм |
| вес | 17500 кг |
| серия | 3.503.1-108 |
П 18 Пустотные плиты по серии 3.503.1-108.
