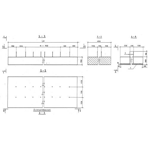
ФЦ-2

Чертеж изделия:
Характеристики изделия:
ПараметрЗначение
длина8500 мм
ширина4000 мм
высота1700 мм
масса85000 кг
нормативный документСерия 3.503-23

ФЦ-2 Фундаменты  Серия 3.503-23.