Б 1.165

Чертеж изделия:
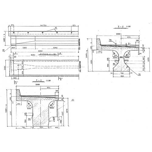
Характеристики изделия:
ПараметрЗначение
длина16500 мм
ширина2060 мм
высота1980 мм
вес46700 кг
серия3.501.1-175.93

Б 1.165 Балки ребристые с ненапрягаемой арматурой по серии 3.501.1-175.93.