Ш 2
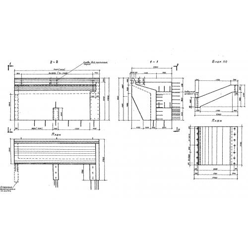
Характеристики изделия:
| Параметр | Значение |
|---|---|
| длина | 3700 мм |
| ширина | 2200 мм |
| высота | 2300 мм |
| вес | 11000 кг |
| серия | 3.501-61 |
Цена:
Рассчитать стоимостьШ 2 Шкафные блоки по серии 3.501-61.
| Параметр | Значение |
|---|---|
| длина | 3700 мм |
| ширина | 2200 мм |
| высота | 2300 мм |
| вес | 11000 кг |
| серия | 3.501-61 |
Ш 2 Шкафные блоки по серии 3.501-61.
