ФМ 8
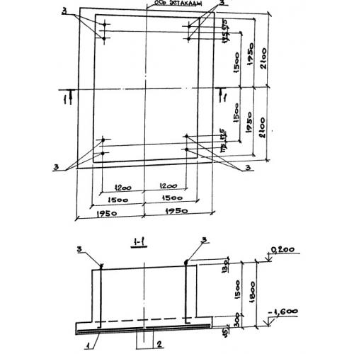
Характеристики изделия:
| Параметр | Значение |
|---|---|
| длина | 3900 мм |
| ширина | 4200 мм |
| высота | 1800 мм |
| вес | 56250 кг |
| серия | 3.015.2-15 |
Цена:
Рассчитать стоимостьФМ 8 Монолитные фундаменты по серии 3.015.2-15.
| Параметр | Значение |
|---|---|
| длина | 3900 мм |
| ширина | 4200 мм |
| высота | 1800 мм |
| вес | 56250 кг |
| серия | 3.015.2-15 |
ФМ 8 Монолитные фундаменты по серии 3.015.2-15.
