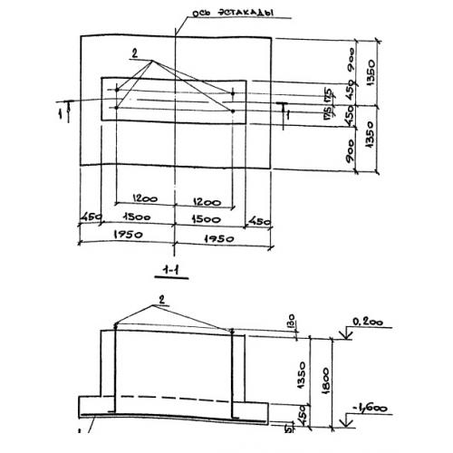
ФМ 3

Чертеж изделия:
Характеристики изделия:
ПараметрЗначение
длина3900 мм
ширина2400 мм
высота1800 мм
вес2100 кг
серия3.015.2-15

ФМ 3 Монолитные фундаменты по серии 3.015.2-15.