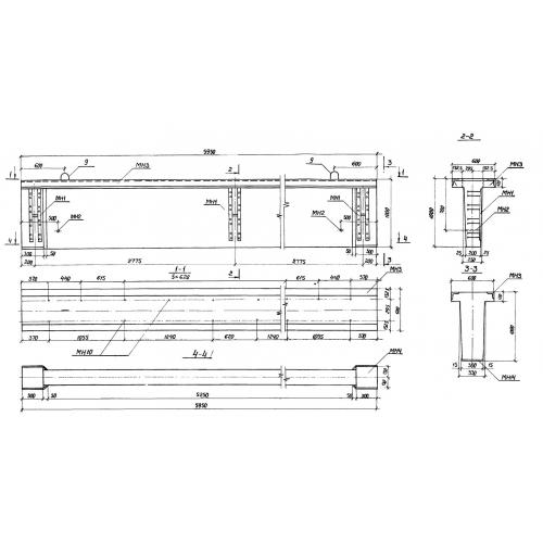
БКНБ 6
Характеристики изделия:
| Параметр | Значение |
|---|---|
| длина | 5950 мм |
| ширина | 600 мм |
| высота | 100 мм |
| масса | 4200 кг |
| нормативный документ | Серия 3.014.1-2 |
Цена:
Рассчитать стоимостьБКНБ 6 Балки крановые напряженные армированные сталью упроченной вытяжкой Серия 3.014.1-2.
