БСП 6.1 балки стропильные

Чертеж изделия:
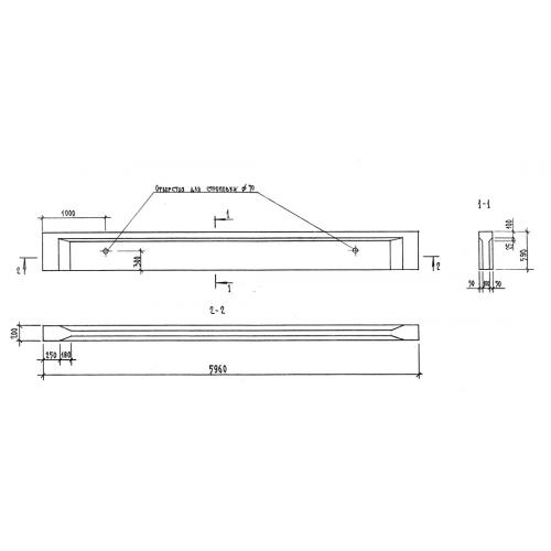
Характеристики изделия:
ПараметрЗначение
длина5960 мм
ширина200 мм
высота590 мм
масса1125 кг
нормативный документСерия 1.462.1-10/93

БСП 6.1  Балки стропильные с параллельными поясами Серия 1.462.1-10/93.