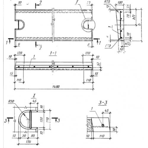
ПП 15-40
Характеристики изделия:
| Параметр | Значение |
|---|---|
| длина | 1490 мм |
| ширина | 400 мм |
| высота | 100 мм |
| вес | 120 кг |
| серия | 1.438-1 |
Цена:
Рассчитать стоимостьПП 15-40 Плиты парапетные по серии 1.438-1.
| Параметр | Значение |
|---|---|
| длина | 1490 мм |
| ширина | 400 мм |
| высота | 100 мм |
| вес | 120 кг |
| серия | 1.438-1 |
ПП 15-40 Плиты парапетные по серии 1.438-1.
