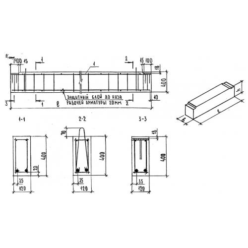
ПРГ 36.1.4 прогоны прямоугольного сечения

Чертеж изделия:
Характеристики изделия:
ПараметрЗначение
длина3580 мм
ширина120 мм
высота400 мм
масса430 кг
нормативный документСерия 1.225-2

ПРГ 36.1.4  Прогоны прямоугольного  сечения Серия 1.225-2.