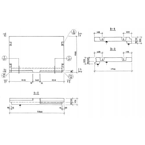
ЛП-28.18

Чертеж изделия:
Характеристики изделия:
ПараметрЗначение
длина2800 мм
ширина1900 мм
высота320 мм
вес2830 кг
серия1.152-7

ЛП-28.18 Лестничные площадки ребристые по серии 1.152-7.