ПУ-10.5.3

Чертеж изделия:
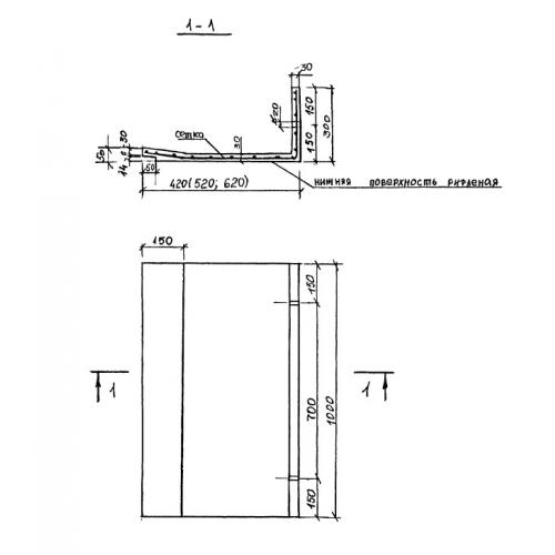
Характеристики изделия:
ПараметрЗначение
длина1000 мм
ширина520 мм
высота300 мм
масса62 кг
нормативнгый документСерия 1.149-КР-1

ПУ-10.5.3 Железобетонные плиты перекрытия Серия 1.149-КР-1.