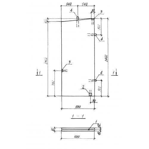
РЛ 11.24.8

Чертеж изделия:
Характеристики изделия:
ПараметрЗначение
длина1080 мм
ширина2400 мм
высота80 мм
масса530 кг
нормативный документСерия 1.137.1 КЛ-3

РЛ 11.24.8  Разделительные перегородки лоджий Серия 1.137.1 КЛ-3.