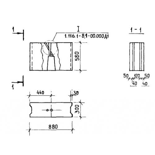
ФБС 9.6.6

Чертеж изделия:
Характеристики изделия:
ПараметрЗначение
длина880 мм
ширина600 мм
высота580 мм
вес530 кг
серия1.116.1-8

ФБС 9.6.6 Фундаментные блоки сплошные по серии 1.116.1-8.