10ПП 16 перемычки плитные

Чертеж изделия:
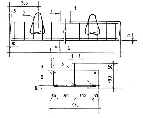
Характеристики изделия:
ПараметрЗначение
длина1550 мм
ширина510 мм
высота190 мм
масса375 кг
нормативный документСерия 1.038.1-1

10ПП 16  Железобетонные перемычки плитного типа Серия 1.038.1-1.