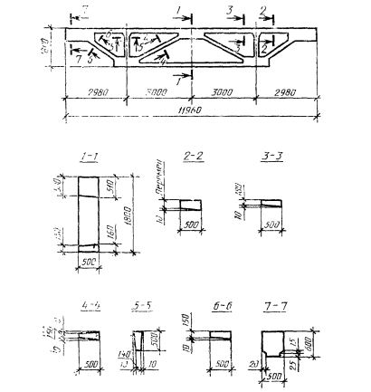
ФП 12
Характеристики изделия:
| Параметр | Значение |
|---|---|
| длина | 11960 мм |
| ширина | 500 мм |
| высота | 1800 мм |
| масса | 8350 кг |
| нормативный документ | ГОСТ 20213-89 |
Цена:
Рассчитать стоимостьФП 12 Фермы подстропильные для покрытий из плит длиной на пролет ГОСТ 20213-89.
| Параметр | Значение |
|---|---|
| длина | 11960 мм |
| ширина | 500 мм |
| высота | 1800 мм |
| масса | 8350 кг |
| нормативный документ | ГОСТ 20213-89 |
ФП 12 Фермы подстропильные для покрытий из плит длиной на пролет ГОСТ 20213-89.
