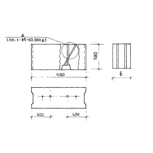
ФБС 12.6.6 фундаментные блоки

Чертеж изделия:
Характеристики изделия:
ПараметрЗначение
длина1180 мм
ширина600 мм
высота580 мм
масса960 кг
нормативный документГОСТ 13579-78

ФБС 12.6.6  Фундаментные блоки стеновые ГОСТ 13579-78.